Theme Tower
도심 속 쌓아올린 수직 테마파크
조성진 CHO SEONG JIN / Studio A
chosj0606@gmail.com
수평적으로 펼쳐져 있던 기존 테마파크를 고밀화된 도심 속에서 수직적으로 재구성하는 새로운 공간 제안
최근 경험 중심의 여가활동에 대한 수요가 증가하면서 놀이공원과 워터파크 등 테마파크에 대한 관심도 높아지고 있다. 하지만 대부분 기존 테마파크는 교외에 넓게 펼쳐진 수평적 공간에 위치하며, 도심 접근성과 공간 활용에 한계가 있다.
또한 기존 초고층 타워들은 건축적으로 높은 고도와 규모를 자랑하지만, 사용자 경험 면에서는 한정된 동선과 단조로운 공간 구성으로 인해 ‘이용자의 몰입과 다양성’에서 제한적인 면을 보여왔다.
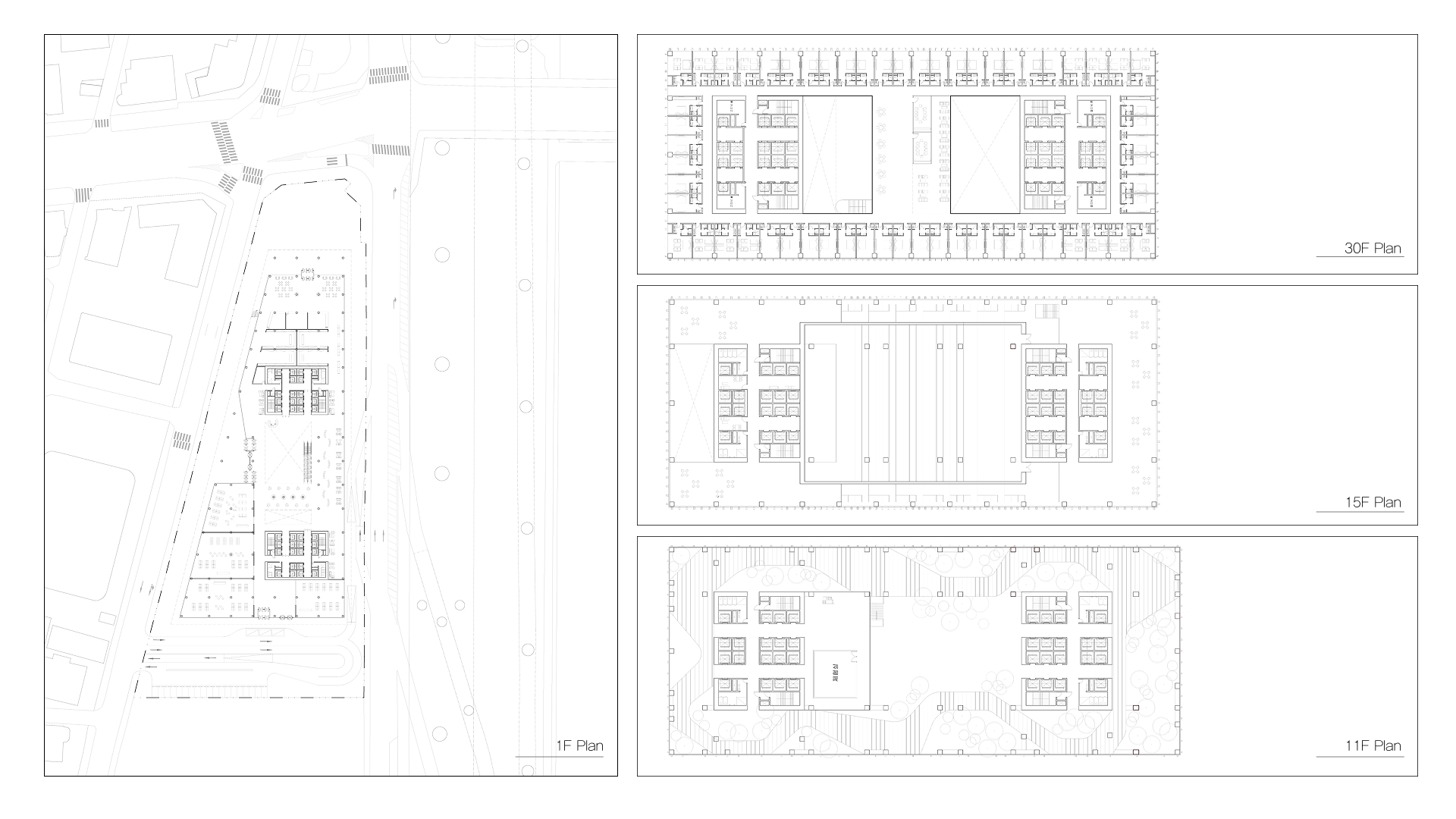
본 프로젝트는 도심 속 고밀화된 공간에서 테마파크를 수직적으로 재구성하며, 기존 타워의 경험적 한계를 벗어나 다양한 층별 테마와 어트랙션을 연계한 복합적이고 몰입적인 사용자 경험을 제안한다.
이를 통해 도시 스카이라인에 새로운 유형의 타워를 제시하고, 수직 공간에서 다층적이고 풍부한 놀이 경험을 구현하는 미래형 레저 플랫폼으로 발전시키고자 한다.











