사회 : 시설 재해석

The Linkspace: 전통시장 활성화를 위한 지상-지하 연계형 복합시설 제안

이재호 / LEE JAEHO

The Linkspace: 전통시장 활성화를 위한 지상-지하 연계형 복합시설 제안

영등포 전통시장과 지하상가의 연결 및 주변 환경 정비를 중심으로

이재호 LEE JAEHO / Studio E
greenspamb@gmail.com

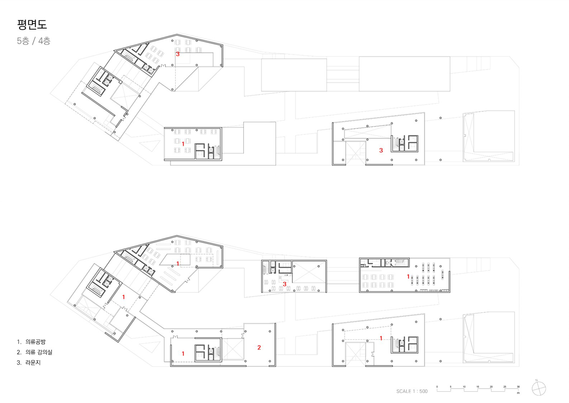
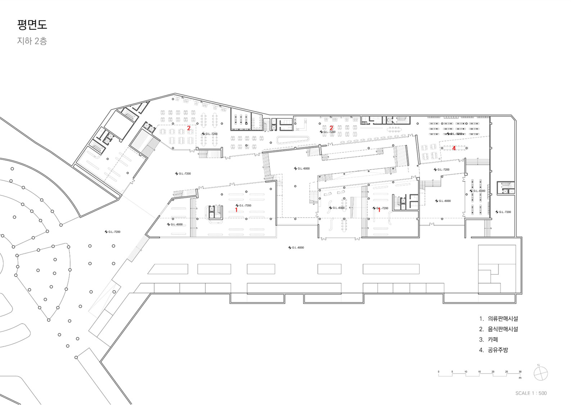
영등포전통시장과 지하상가의 구조적 통합과 시설 개선을 통해 공간을 연결하고 시장 활성화를 유도하는 복합시설을 제안한다.

전통시장은 지역 문화를 보존하고 지역 사회의 상호작용을 촉진하는 중요한 역할을 한다. 그러나 도시 지역의 많은 전통시장은 방문객 감소와 인프라 노후화 등의 문제에 직면해 있다. 최근 전통시장의 상당수가 재개발 사업으로 인해 복합주거시설로 변화하고 있다. 이러한 재개발은 경제적 기회를 제공할 수는 있지만, 전통시장이 구현하는 고유한 지역 정체성과 문화유산을 보존하는 가치를 간과하고 있다. 본 프로젝트는 전통시장의 역사적, 문화적 중요성을 보존하면서 접근성을 높이고 주변 환경을 개선하여 전통시장을 활성화하기 위한 전략으로 지상-지하 통합 복합시설을 제안한다.

본 프로젝트는 영등포 전통시장과 인접한 지하상가를 중심으로 구조적 통합과 종합적인 시설 개선을 통해 공간을 연결하는 방안을 모색하는 것을 목적으로 한다. 지상시장과 지하상가를 연계하고 주변 시설을 정비함으로써 유동인구 증가와 경제 활성화를 유도하는 더 편리하고 매력적인 상업환경을 조성하고자 한다. 또한, 지속 가능한 시장 활성화를 위해 필수적인 공간 통합 및 환경 개선을 위한 실질적인 해결책을 제시한다. 물리적 인프라 개선과 공간적 연결성을 결합하여 전통시장을 활성화할 수 있는 잠재력을 강조한다.