Temporary Shelter for Flood Victims
플로팅 건축 기법을 적용한 임시 주거 시설 제안
장우창 JANG WOO CHANG / Studio E
jwc1999@naver.com
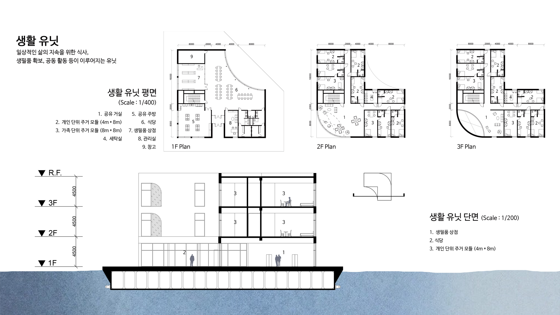
낯선 환경에서 살아갈 수 있는 최소한의 기능이 집적된 모듈형 임시 주거
기후 위기로 인한 기상이변은 점점 더 빈번하고 강력해지고 있다.
해수면 상승과 함께, 해안 지역은 태풍과 해일의 위협에 노출되고 있다.
전 세계 인구의 40% 이상이 해안도시에 거주하고 있는 지금, 재난은 더 이상 일시적인 사건이 아닌, 삶의 터전을 흔드는 일상이 되고 있다.
이처럼 ‘서 있을 땅’조차 잃어버린 상황에서, 건축은 어디에, 어떻게 존재해야 하는가? 삶의 기반을 잃은 이들이 회복할 때까지 머무를 공간은 어떤 모습이어야 하는가? 더 나아가 개인의 회복을 넘어 공동체의 회복으로 확장될 수 있을까?
인간적인 존엄을 유지하게 하는 최소한의 조건을 갖춘 불완전한 것들이 모여 서로를 보완해줄 때, 공동체가 형성될 수 있다고 보았으며, 이러한 ‘최소한의 건축’이 적용될 수 있는 플로팅 임시 주거 시설을 제안한다.













