기술 : 시스템 구축

STACK ATHLETICA

원준호 / WON JOONHO

STACK ATHLETICA

수직형 체육시설

원준호 WON JOONHO / Studio D
Wonjunho00@gmail.com

체육시설, 버스터미널, 문화시설을 수직으로 배치하여 도심에서 효율적인 토지 활용이 가능하도록 한다.

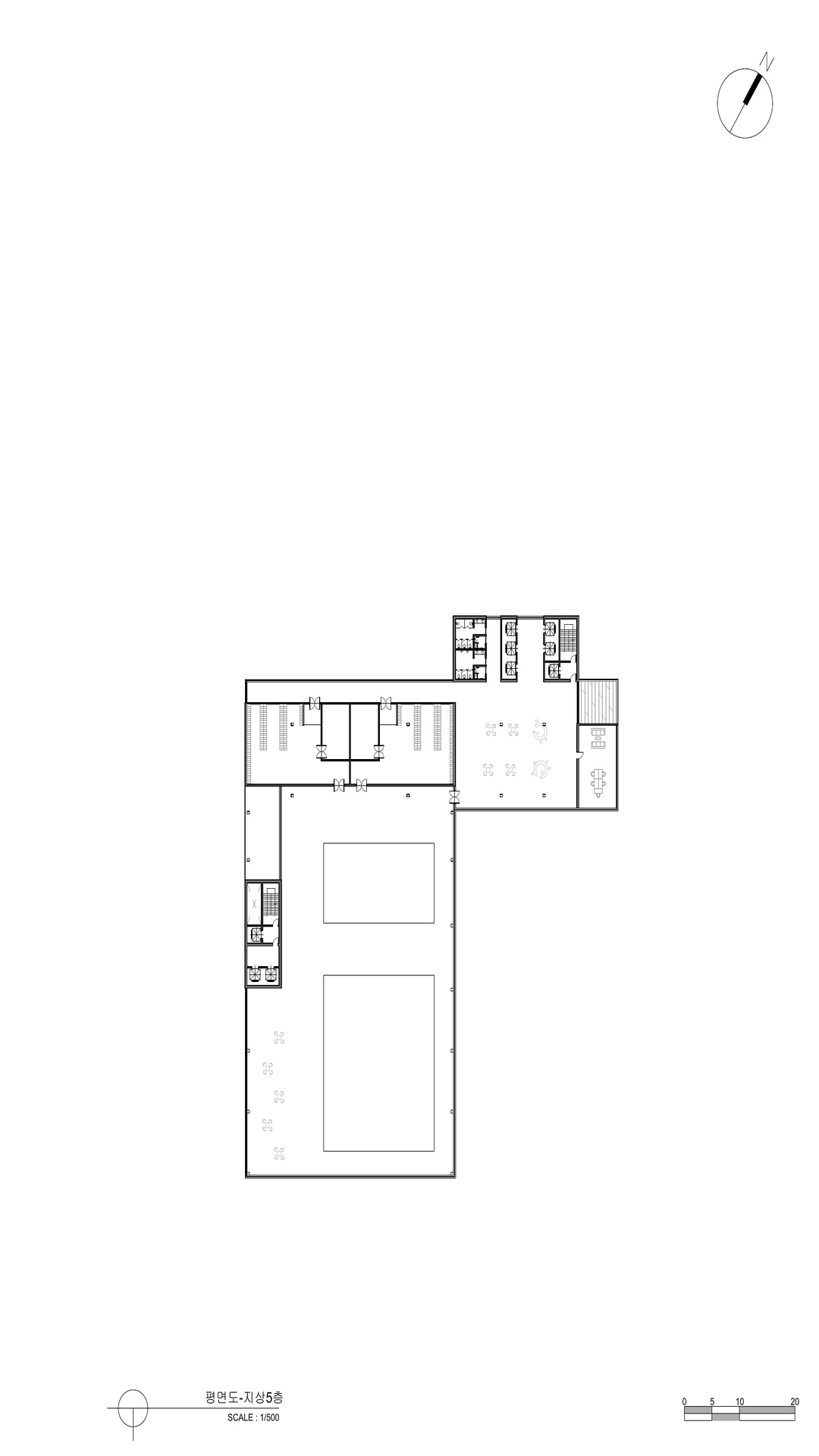
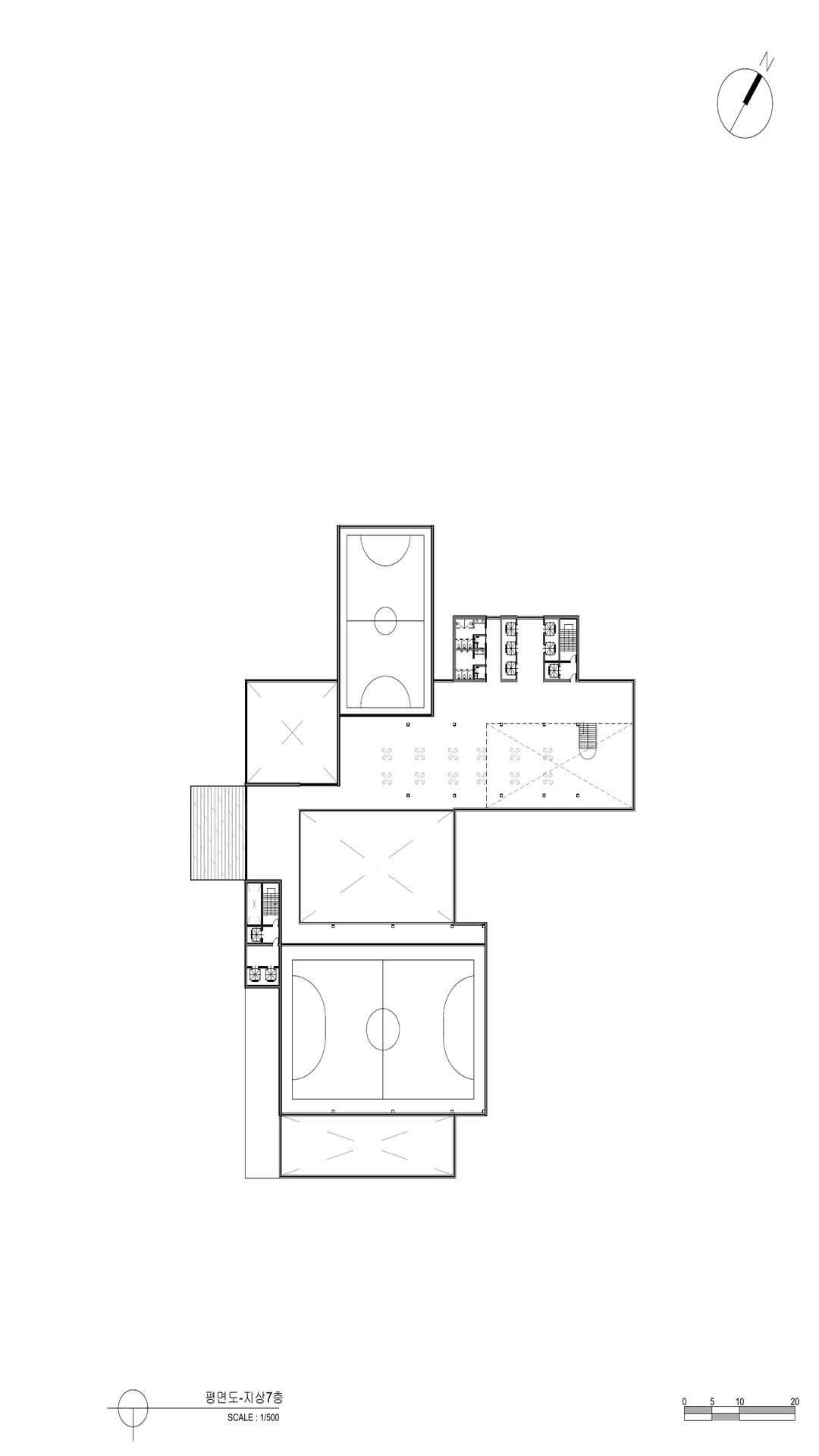
본 프로젝트는 도심지 내 한정된 부지를 효율적으로 활용하기 위해 체육시설, 버스터미널, 문화시설을 하나의 복합건물로 계획한 졸업설계 작품이다. 다양한 기능을 수직적으로 집약시켜 도시 내 이동 편의성과 생활·문화 인프라를 동시에 제공하는 것을 목표로 한다. 대상지는 대중교통 접근성이 높으나, 주변에 체육 및 문화 인프라가 부족한 도심지로, 토지 이용률을 극대화하고 교통 결절점을 활용한 복합 개발의 필요성이 높았다.
버스터미널은 지상에서 띄워 배치하여 저층부를 대상지 인접 공원과 연계된 개방형 공간으로 계획하였다. 이를 통해 공원의 녹지가 건물 내부까지 유입되며, 보행 친화적인 환경을 제공한다. 중층부에는 체육관과 수영장 등 체육시설을 배치하여 생활체육과 전문 스포츠 활동을 지원하고, 상층부에는 북카페와 공연장 등 문화시설을 두어 도심 속 문화 거점으로 기능하도록 하였다.