S.O.U.L
Self Organizing Urban Lifeform
김범준 KIM BUMJUN / Studio A
bumjun929@khu.ac.kr
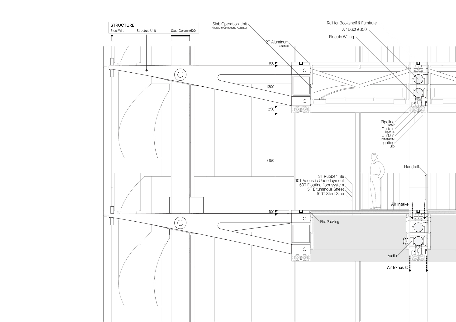
인간와 동등한 위계에서 상호작용하는 생명체로써의 공간에 대한 실증적 탐구
나는 건축이 연면적과 층고로 계산되는 공(空)이 아닌 살아 움직이는 생명체이기를 바란다.
원시에서부터 현재까지, 건축은 필요에 부합하는 공간을 찾는 것에서 필요를 충족시키는 공간을 창조하는 것으로 진화했다. 그러나 현대에 들어서 건축은 끊임없는 발전에도 진화를 겪지 못했다.
진화는 언제나 본질을 향한 철학적 제언에서 시작된다. 이제 건축은 필요에 종속되지 않으며, 필요의 생성을 통해 인간과 동등한 위치에서 상대성을 갖는 생명체로 진화한다.











