POP-UP Horizon
대형산업인프라의 벽 너머, 자연과 도시의 삶을 잇다
김현민 KIM HYUNMIN / Studio C
mollysnoopy@naver.com
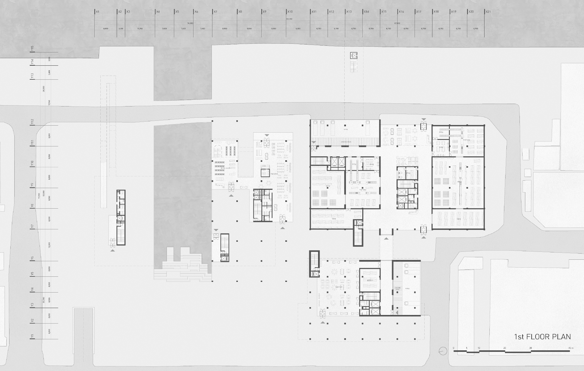
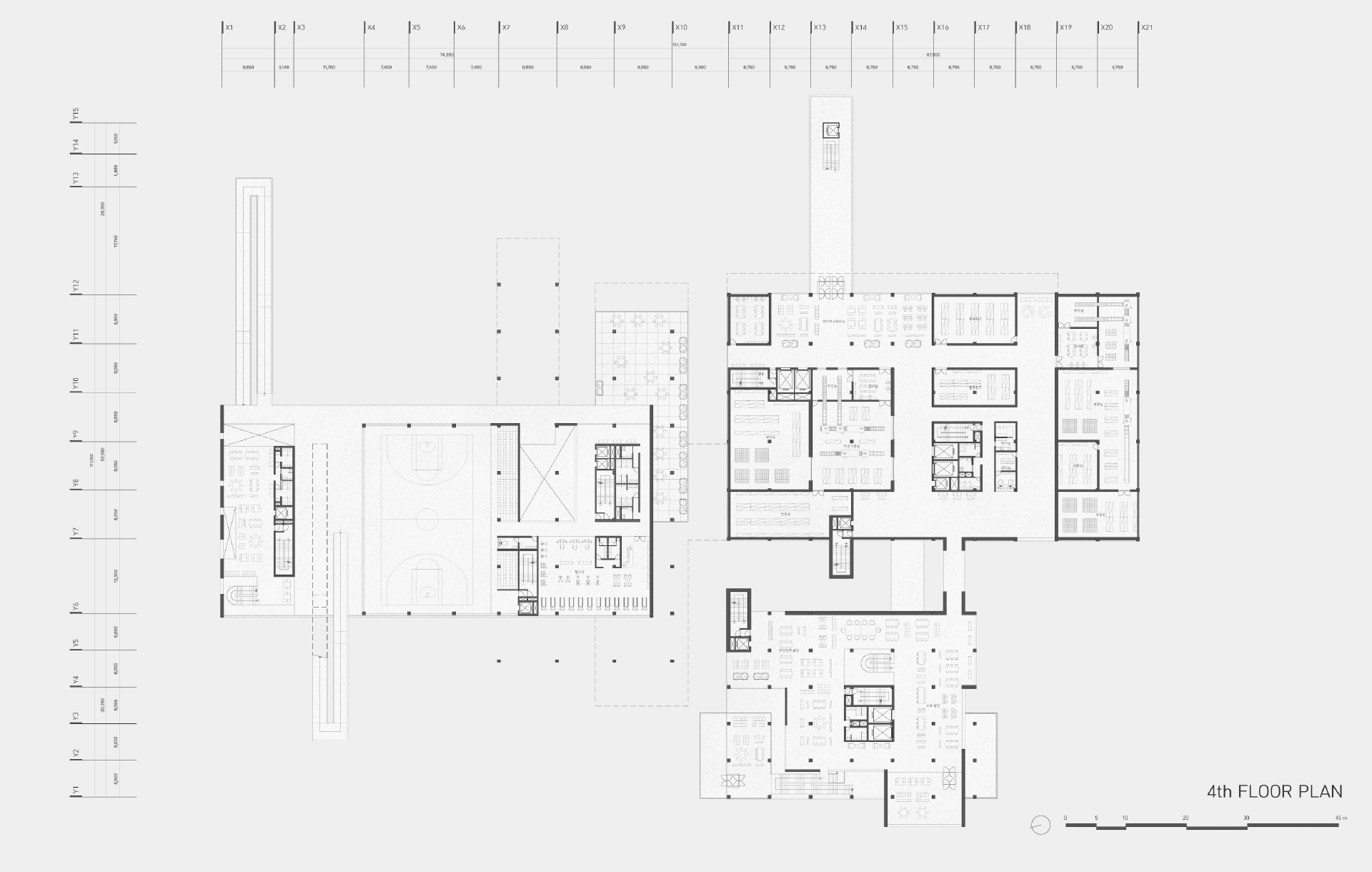
거대한 냉동창고의 벽을 열어 숨겨져 있던 내부공간과 그 너머의 풍경을 드러내고 산업유산 기반의 공공 전이공간을 제안한다.
본 졸업설계는 님비(NIMBY) 현상이 두드러지는 부산 남항의 항만지역을 대상으로 한다. 해당 지역은 거대한 매스 형태의 냉동창고들이 도시와 바다 사이에 물리적·심리적 장벽을 형성하여 시각적 흐름과 사람들의 이동을 단절시키고 있다. 최근 부산시 도시재생사업에서 냉동창고 외벽에 다양한 스카이라인을 모사한 벽화를 설치하려는 시도가 있었으나, 이는 단순한 시각적 장식에 그쳐 자연과 도시 간의 근본적 단절 문제를 해결하지 못하였다.
현재 국가 주도의 항만 재생사업은 북항을 중심으로 진행되고 있으며, 북항에는 부산역, 건설 예정인 오페라 하우스 부지, 대형 상업시설 등이 위치하여 도시의 주목을 받는다. 반면 남항은 과거 뉴타운 조성사업이 중단된 이후 공공시설 부족, 주거·산업·상업 기능 간의 분리, 난개발 문제 등으로 인해 상대적으로 소외되어 있다. 또한 북항 재생사업 역시 상업성이 우선시되면서 공공성 확보에는 한계가 있다. 이러한 맥락 속에서 본 설계는 항만과 도시 공간 사이의 경계를 완화하고, 주민과 방문객 모두가 이용할 수 있는 공공성 있는 전이 공간을 제안한다.
디자인 컨셉은 ‘팝업(POP-UP)’으로, 이는 갑작스럽게 나타난다는 의미와 함께, 냉동창고의 견고한 벽이 가리고 있던 내부 공간과 그 너머의 바다 풍경을 드러내는 건축적 장치를 뜻한다. 계획 과정에서 일부 냉동창고을 보존하여 산업유산의 기억을 유지하고, 그로부터 뻗어 나가는 새로운 매스를 배치하여 익숙하면서도 낯선 공간 경험을 제공한다. 매스는 바다를 향해 다양한 형태로 확장되어 다채로운 스카이라인을 형성하며, 저층부를 개방하여 시각적·물리적 흐름을 확보하였다. 도심과 맞닿는 서측 입면은 도시적 스케일과 조응하도록 계획하여 주변 환경과의 연속성을 강화하였다.
프로그램 구성에서는 복합시설을 연속적으로 배치하여 공간적 파노라마를 형성하고, 이용자의 동선 속에서 바다·도시·산업의 풍경이 교차하도록 하였다. 이는 유동적인 팝업 개념의 다공적 공간을 구현한다. 본 설계는 숨겨진 공간과 경관을 드러내고, 산업적 산물의 흔적을 도시의 기억과 삶의 풍경으로 전환시키는 것을 목표로 한다.











