Not a church, But the church
자유로운 동선을 이용한 도심 속 수직형 교회
안세현 AN SEHYEON / Studio B
ansh3612@naver.com
도심 속 수직형교회의 접근성과 커뮤니티공간을 이용한 수직동선계획 탐구
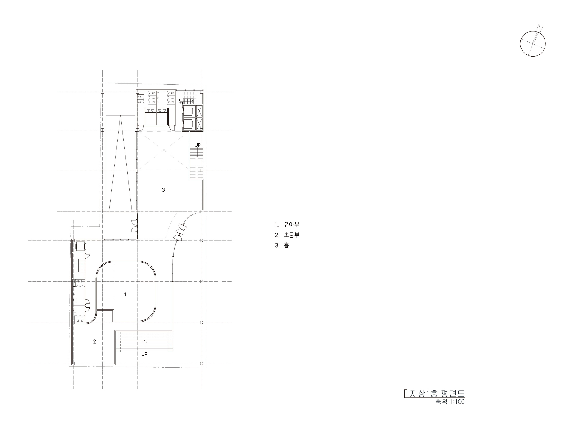
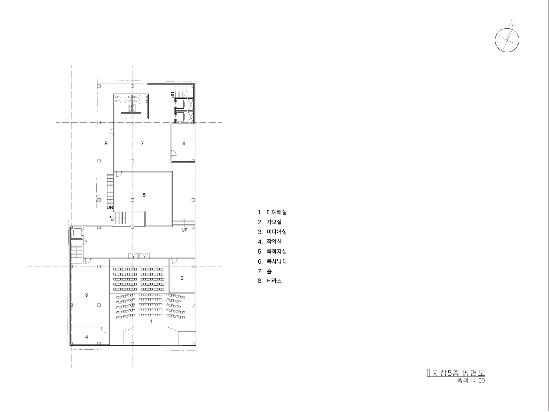
시대가 계속 변화함에 따라 교회 또한 역할에 대한 변화가 필요하다. 기존 도심 교회는 주로 주말에만 사용되며, 공간 활용성이 제한적이고 신자 중심의 폐쇄적인 구조로 인해 비신자의 접근이 어렵다는 한계를 가진다. 특히, 목동은 주거단지가 둘러싸고 중심부에 상업지역이 배치된 계획 도시로서, 재개발 이슈로 인한 주민 갈등이 예상되며 이를 해소할 수 있는 커뮤니티 공간의 필요성이 높아지고 있다. 그러나, 목동에는 공원과 같은 야외 커뮤니티 공간은 풍부한 반면, 실내 커뮤니티 공간은 부족하여 주민들이 자유롭게 모이고 교류할 수 있는 장소가 제한적이다.
본 연구는 이러한 문제를 해결하기 위해, 기존 교회의 폐쇄적인 접근 방식에서 벗어나, 수직형 교회 모델을 통해 동선 체계를 재구성하여 새로운 접근성을 제안하는 데 초점을 맞춘다. 특히, 교회의 모든 공간이 균등한 접근성을 가질 수 있도록 설계하며, 내부와 외부가 자연스럽게 연결되는 유기적인 공간 흐름을 구축하여 신자와 비신자 모두가 편하게 이용할 수 있는 교회를 목표로 한다.
궁극적으로 기존 도심 교회의 문제점을 분석하고, 수직적 구조에서의 새로운 동선 설계 전략을 통해 접근성을 향상시키는 방법을 탐색한다. 또한, 디지털 기술을 활용한 공간적 유연성 및 연결성을 강화하여, 교회가 단순한 종교적 공간을 넘어 도심 내 실내 커뮤니티 허브로 기능할 수 있도록 한다. 이를 통해 미래 교회의 기존과는 다른 공간 모델을 제시하고, 교회가 지역사회와 더욱 긴밀히 연결될 수 있는 가능성을 모색하고자 한다.


















