사회 : 시설 재해석

COOO

권민우 / MINWOO KWEON

COOO

CO-nversion: co-mmercial to co-living

권민우 MINWOO KWEON / Studio A
minwookweon1001@gmail.com

Proposal for Urban Housing Typology through the Reconfiguration of Underutilized Commercial Facilities.

COVID-19 팬데믹 이후 전 세계적으로 상업시설과 업무시설의 공실률이 크게 증가하고 있다. 한국에서는 특히 동대문 패션클러스터와 같은 특화된 상업시설에서 공실률이 50~86%에 달하는 심각한 상황이며, 매출도 20~30% 감소했다. 이러한 현상은 온라인 쇼핑 확산, 중국산 저가 제품과의 경쟁력 약화, 콘텐츠 부족, 시설 노후화 등이 주요 원인이다. 한편, 동대문구와 인근 지역은 1인 가구가 대다수를 차지하는 주거 수요가 풍부한 지역이나, 주거 형태가 원룸, 오피스텔, 레지던스 등으로 제한되어 주거 다양성이 부족하고, 이는 삶의 질 저하와 사회 문제로 이어질 수 있다.

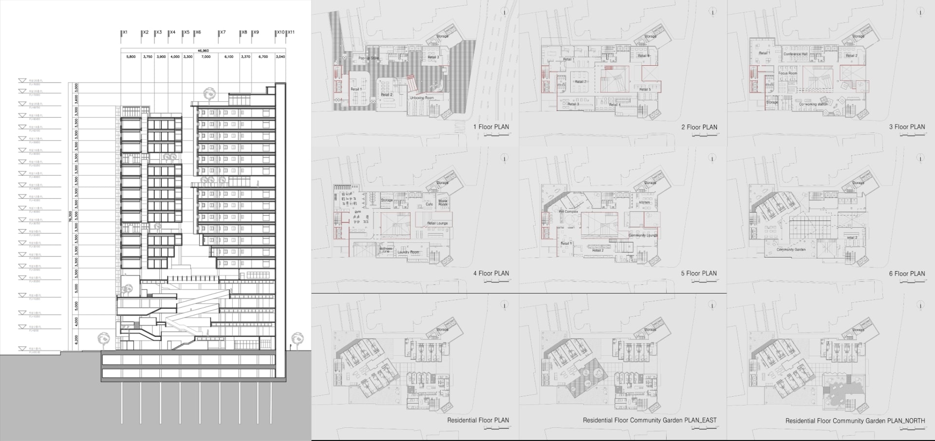
이러한 상황에서 공실률이 높은 상업시설을 1인 가구를 위한 주거시설로 전환하면 도심 내 유휴 공간을 효과적으로 활용할 수 있으며, 동시에 1인 가구의 주거 선택지를 확대할 수 있다. 본 프로젝트는 동대문에 위치한 ‘디자이너크럽’을 실증적 사례로 삼아, 일반 상업지에 위치하며 넓은 바닥면적(deep floor plan)을 가진 상업시설을 주거시설로 전환할 때 발생하는 구조적·설계적 장단점을 분석한다. 기존 상업시설의 넓은 플레이트를 주거시설에 맞게 재단하여 일반 상업지가 갖는 불리한 주거 조건을 개선할 수 있을 것으로 기 대하며, 이러한 컨버전을 통해 도심형 주거 유형을 제안하고자 한다.

기존 건물의 형태를 존중하면서도 상부 매스를 연장하고, 불필요한 부분은 비워내어 공간을 적절히 나누었으며, 내부 시선이 교차하지 않도록 실을 배치해 채광과 구조를 최대한 활용하였다. 중앙부를 개방하여 열린 공간과 회전형 동선을 계획함으로써, 자연스럽게 시선이 내부로 향하도록 유도하였다. 이를 통해 외부와의 적절한 거리감을 확보하고, 일반 상업지역의 불리한 주거 조건을 극복하고자 하였다. 이를 통해 일반상업지 내 유휴 공간을 효율적으로 재활용하고 상업과 주거가 공존하는 새로운 도심형 주거 모델을 제시하고자 한다.