CINEMA-EUL
마을로 스며든 독립영화관
임수현 IM SOOHYEON / Studio B
hyunee_01@naver.com
전주의 조밀하고 낮은 도시조직에 어울리는 클러스터형 독립영화공간 제안
본 프로젝트는 오랜 독립영화의 문화와 역사를 품은 전주에 독립영화문화시설을 조성하는 제안이다. 상업영화에 비해 다소 낯설고 비일상적으로 느껴지는 독립영화를, 단기간의 영화제에서만이 아니라 시민들이 일상 속에서 지속적으로 향유할 수 있는 공간을 목표로 한다.
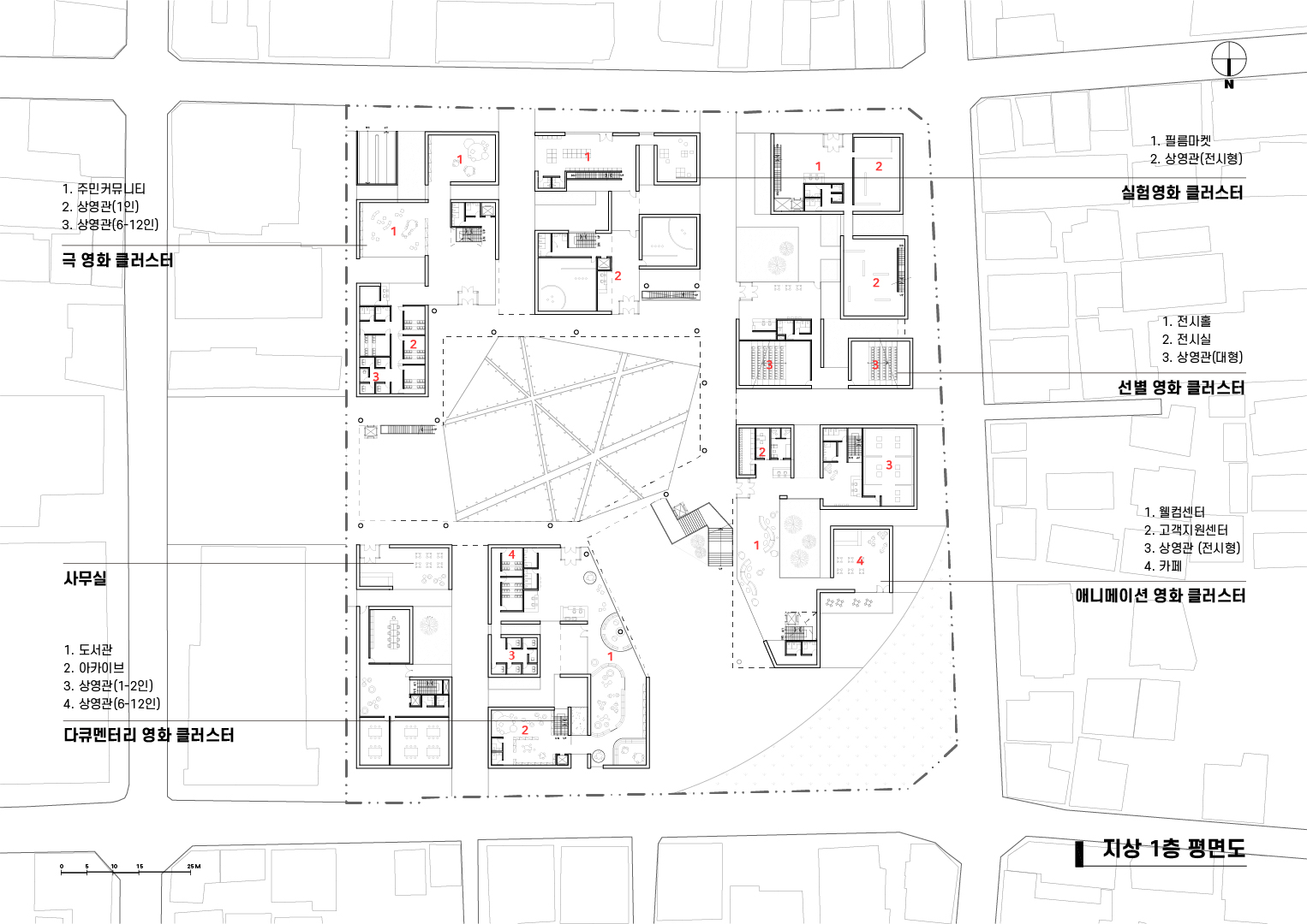
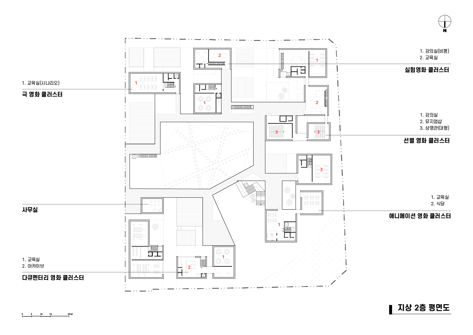
대상지는 전주국제영화제의 중심지이자 전통적인 도시조직이 잘 보존된 전주시 고사동 일대이다. 좁은 골목과 저층 건물이 밀집해 전주 고유의 도시 맥락을 유지하고 있으며, 전주국제영화제 주요 행사가 열리는 ‘전주 영화의 거리’와 맞닿아 있다. 이 거리는 영화제 기간 동안 축제의 중심이자, 전주가 ‘영상·영화의 도시’로 자리매김하는 데 중요한 상징 공간이다. 그러나 영화제가 끝난 뒤에는 영화문화가 일상으로 이어지지 못한다는 한계가 있다.
이에 본 프로젝트는 거대한 상징물 대신 작고 낮은 마을 같은 형태를 선택했다. 독립영화는 극영화, 다큐멘터리, 실험영화, 애니메이션의 네 장르로 구분되며, 여기에 독립영화 중 큐레이션된 작품을 상영하는 선별영화를 더해 총 다섯 개의 시네마 클러스터로 구성한다. 각 클러스터는 장르의 특성을 반영한 전용 상영관과 교육시설을 중심으로, 전시실·도서관·식당 등 알파 프로그램을 결합하여 영화 경험의 폭을 확장한다.
이러한 독립영화 맞춤형 공간을 통해 관람에 머물렀던 기존의 영화 향유 방식을 넘어, 전시·교육·커뮤니티가 결합된 다층적 영화문화를 구현하고자 한다. 이를 통해 주민들이 자연스럽게 찾고 참여하는 열린 문화공간이자, 전주 고유의 영화문화를 일상 속에서 향유하는 거점으로 기능하도록 했다.












