콘크리트 도시를 넘어
木造 타워의 건축적 가능성
조영채 CHO YOUNG CHAE / Studio D
cyc19991@naver.com
수직 목구조로 구현하는 도심 속 친환경 아카이브
현재 우리가 사는 도시는 콘크리트로 이루어져 있다. 가장 익숙한 집합 주거 형태인 아파트를 비롯해 각종 빌딩과 주택까지 대부분의 건축물이 콘크리트를 주재료로 사용하고 있다. 이는 시공의 효율성과 구조적 안정성, 그리고 경제성이 맞물리며 오랜 시간 표준으로 자리 잡아온 결과이다. 하지만 우리는 과연 지금의 도시 환경이 최선인지 다시 한번 고민해볼 필요가 있다.
우리의 인식 속에서 목구조는 익숙하고 편안한 공간으로 자리 잡고 있다. 전통적인 한옥 구조가 그 대표적인 예이며, 과거 건축과 관련한 기술 개발이 미비했던 시기에는 목재가 가장 다루기 쉬운 건축 재료로 활용되었다. 목재는 자연에서 얻을 수 있는 친환경적인 재료이며, 사람들에게 따뜻한 감성과 정서적 안정감을 제공한다. 하지만 건물의 높이 경쟁이 치열해지면서 목구조는 점차 설 자리를 잃었고, 현재는 한옥을 제외하면 주변에서 찾아보기조차 어려운 실정이다.
이제는 이러한 건축적 흐름을 다시 돌아보며, 목구조의 구조적인 가능성을 현대적인 방식으로 재해석해야 할 시점이다.
이에 따라, 기존의 2-3층 규모에 머물던 국내 목구조를 10층 규모의 타워형으로 새롭게 제안한다. 이는 단순히 높이 확장이 아닌, 목구조가 가진 장점을 현대 건축에 적용하는 새로운 시도가 될 것이다. 친환경적이면서도 도시적 맥락에서 경쟁력을 가질 수 있는 목조 타워는, 지속 가능성과 건축적 다양성을 동시에 실현할 수 있는 현실적인 대안이 될 것이라 기대한다.
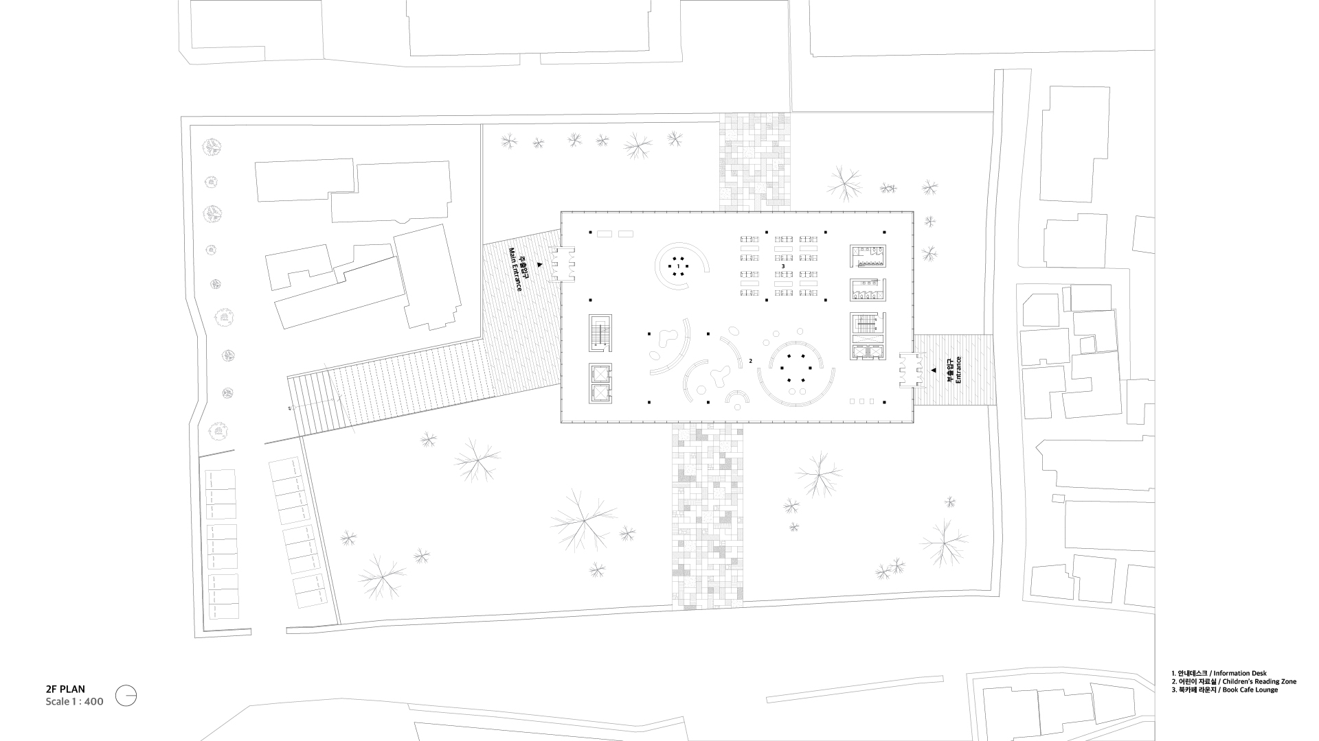
이 타워는 궁극적으로 ‘도심 아카이빙’을 핵심 역할로 하는 도서관 프로그램을 품고 있다. 도심 속에서 생성되고 소멸되는 정보와 기록들, 그리고 기억을 수집하고 저장하며 이를 다양한 매체와 공간을 통해 시민들에게 개방한다. 이를 통해 타워는 도심의 과거와 현재, 더 나아가 미래까지 연결하는 살아있는 기록 장치로 기능한다.














