깊은 표면
도심형 콘텐츠 스튜디오
김현조 KIM HYUN JO / Studio A
hseo8320@gmail.com
표면과 공간
표면은 건물에서 가장 먼저 인식되는 것 중 하나이기에 내외부를 매개하는 역할을 할 가능성이 크다. 그러나 일반적으로 건물의 표면은 공간과는 별개로, 분리되어 껍데기처럼 붙어 있을 뿐이다.
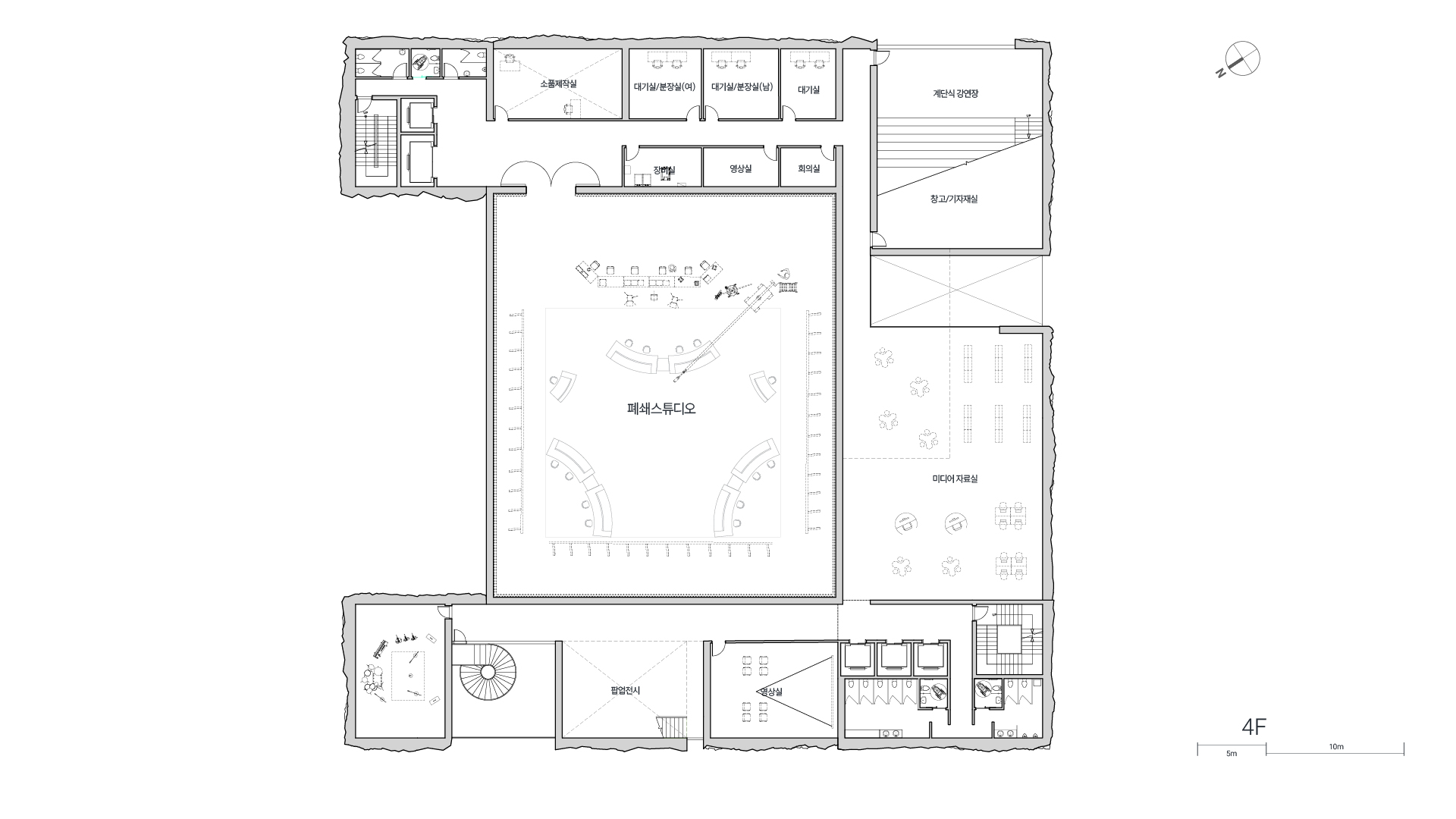
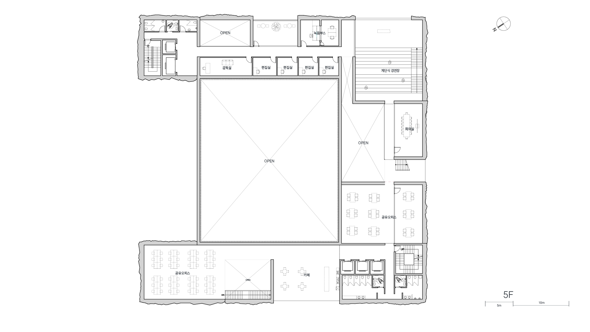
따라서 구조와 공간을 결합시킨 깊은 표면이 익숙한 낯섦으로 다가올 수 있도록 했다. 깊어진 표면은 중심부 공간을 유연하게 이용하게 될 가능성을 내포하기에, 콘텐츠 스튜디오가 프로그램으로 적절했다. 스튜디오를 지원하는 각 프로그램들은 활동성과 개방성, 스튜디오와의 관계에 따라 드러나고 숨으며 내외부를 연결한다. 이러한 다양한 깊이의 프로그램들은 돌처럼 쌓여 하나의 표면을 이룬다.










