사회 : 시설 재해석

공유, 다시 살아나는 동네

정창민 / JEONG CHANG MIN

공유, 다시 살아나는 동네

함께 사는 집에서 다시 피어나는 마을 이야기

정창민 JEONG CHANG MIN / Studio B
ssjsw@khu.ac.kr

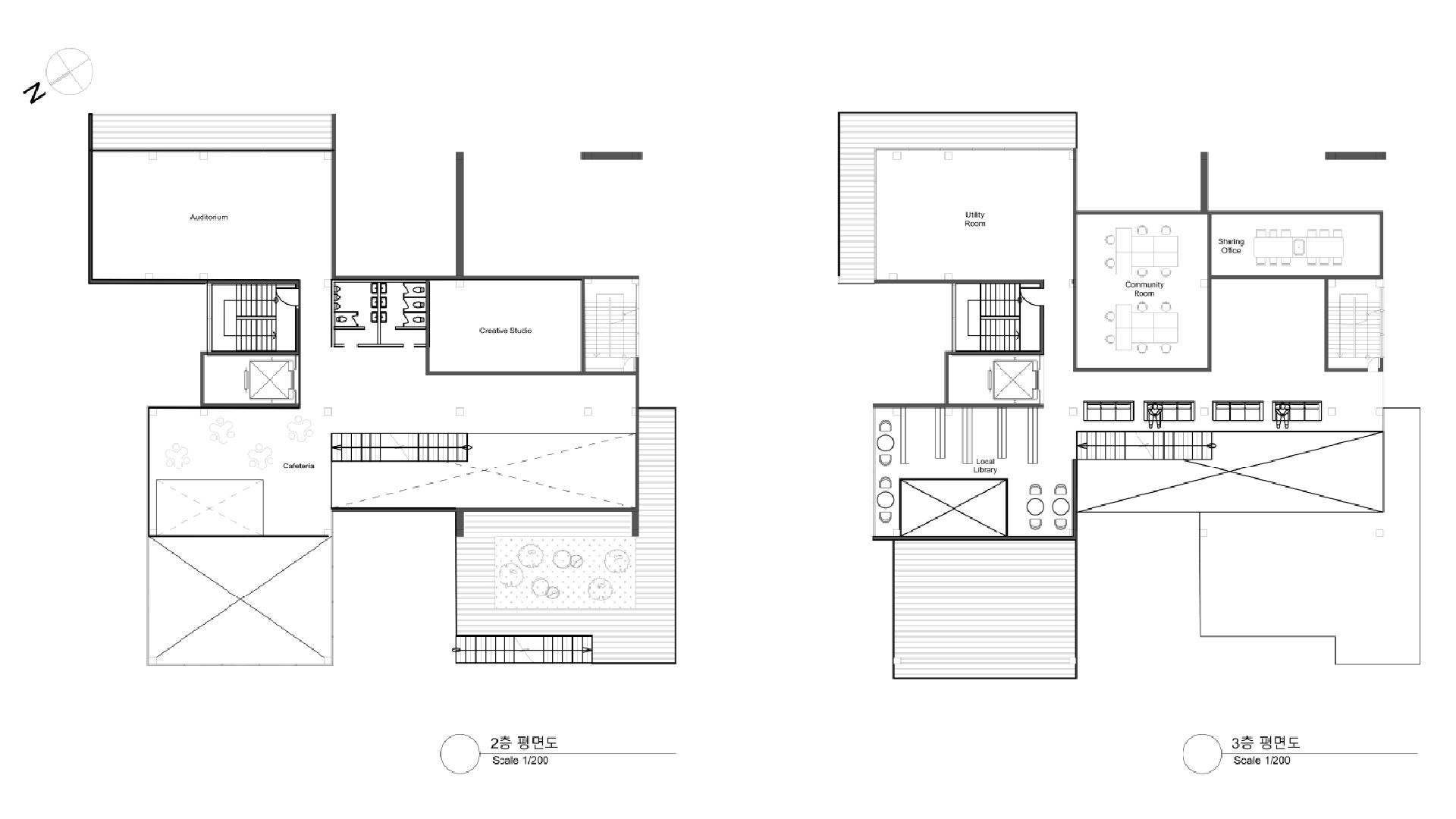
구도심에서의 공유주거를 통한 주택 공급과 지역 커뮤니티 구축

이 프로젝트는 주거의 획일화와 구도심 공동화 현상이 심화되고 있는 현대 도시 문제에 대응하여, 수원 세류동을 대상으로 공유주거를 통한 대안적 주거 방식을 제안한다. 아파트 선호 경향이 강해지는 가운데, 기존 구도심 주택의 경쟁력은 점점 약화되고 있으며 이로 인해 물리적 쇠퇴뿐 아니라 지역 공동체의 해체도 가속화되고 있다.

본 설계는 소규모 단위의 공유주거를 도입하고, 주민센터 또는 문화시설과 같은 커뮤니티 거점을 함께 계획함으로써, 일상 속에서 자연스럽게 관계가 형성되는 구조를 유도한다. 이를 통해 단순한 주택 공급을 넘어서, 지역 주민 간의 유대 회복과 지속가능한 도시 재생의 가능성을 모색하고자 한다. 공유를 통한 주거의 재해석이, 구도심에 새로운 활력을 불어넣는 출발점이 되기를 기대한다.